Acton Town Hall Regeneration: Blueprints


All the details for you to pour over

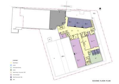
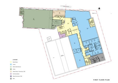
Here's some more info about the planned development of the Town Hall complex.

Ground floor

First floor

Second floor

An architectural sketch

Big versions of the images from a couple of days ago:


February 3, 2012

 

Related links