
The new store would be in the unit on the right. Picture: BrentfordTW8.com
September 13, 2024
Plans have been drawn up for a new Co-op supermarket within the Brentford Community Stadium development.
The store would be situated near to the entrance to the ground on Lionel Road South just off Chiswick High Road.
A licensing application has been submitted to Hounslow Council by Jay Retail Ltd which is understood to already manage a number of Co-op branches.
It is seeking permission to open the shop and serve alcohol up until midnight every day although this is not necessarily indicative of the likely opening hours.
The application states that the intention is to serve both local residents and ‘enhance the fan experience’ for people attending fixtures at the stadium.
Construction activity around the area is continuing but many of the anticipated 910 flats in the development around the ground are already completed and occupied. Residents currently need to go to Brentford or Chiswick to shop for groceries.

The store faces onto Lionel Road South. Picture: BrentfordTW8.com
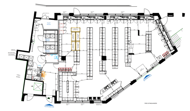
A store plan submitted with the application shows a mid-sized supermarket with seven or eight aisles to browse.

The plan of the store submitted with the application
Comments on the application must be submitted to licensing@hounslow.gov.uk by 9 October.
Like Reading Articles Like This? Help Us Produce More This site remains committed to providing local community news and public interest journalism. Articles such as the one above are integral to what we do. We aim to feature as much as possible on local societies, charities based in the area, fundraising efforts by residents, community-based initiatives and even helping people find missing pets. We’ve always done that and won’t be changing, in fact we’d like to do more. However, the readership that these stories generates is often below that needed to cover the cost of producing them. Our financial resources are limited and the local media environment is intensely competitive so there is a constraint on what we can do. We are therefore asking our readers to consider offering financial support to these efforts. Any money given will help support community and public interest news and the expansion of our coverage in this area. A suggested monthly payment is £8 but we would be grateful for any amount for instance if you think this site offers the equivalent value of a subscription to a daily printed newspaper you may wish to consider £20 per month. If neither of these amounts is suitable for you then contact info@neighbournet.com and we can set up an alternative. All payments are made through a secure web site. One-off donations are also appreciated. Choose The Amount You Wish To Contribute. If you do support us in this way we’d be interested to hear what kind of articles you would like to see more of on the site – send your suggestions to the editor. For businesses we offer the chance to be a corporate sponsor of community content on the site. For £30 plus VAT per month you will be the designated sponsor of at least one article a month with your logo appearing if supplied. If there is a specific community group or initiative you’d like to support we can make sure your sponsorship is featured on related content for a one off payment of £50 plus VAT. All payments are made through a secure web site. |